Wchodząc do mieszkania, zauważamy trzy dominujące elementy: biel, szarość i drewno. Stonowane barwy tworzą minimalistyczne, harmonijne wnętrze, pełne przestrzeni i światła. Głównym założeniem projektu było stworzenie przytulnej, przyjaznej przestrzeni do życia, która będzie tłem dla różnych scenariuszy jej użytkowania.
Czytelny podział przestrzeni
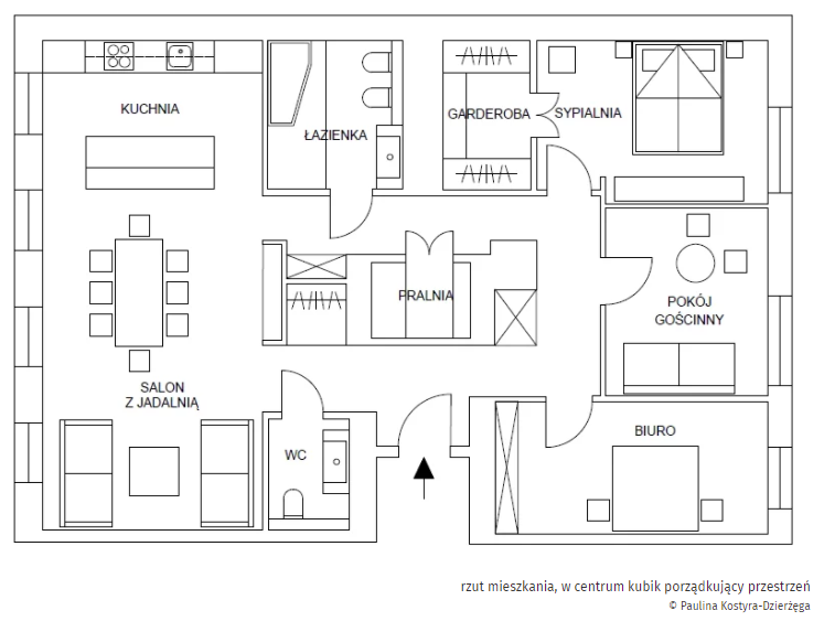
Właściciele Paulina i Jarek kupili mieszkanie w momencie, gdy deweloper rozpoczął generalny remont katowickiej kamienicy. To pozwoliło im na połączenie dwóch lokali w jeden, o powierzchni 110 metrów kwadratowych z wychodzącymi na wschód i zachód. Układ funkcjonalny od początku był dla nich jasny.
Wiedzieli, w której części pustego pomieszczenia będzie strefa dzienna, a w której prywatna. Trzeba było tylko znaleźć sposób, by funkcjonalnie je oddzielić. W całym wnętrzu były tylko trzy ściany, które architektka wykorzystała. Umieściła między nimi pralnię, a po ich bokach ulokowała pojemne szafy. Z tego połączenia powstał kubik porządkujący całą przestrzeń, który można obejść dookoła. Ustawiony w centrum mieszkania, oddziela strefę dzienną od łazienki gospodarzy, obu sypialni i gabinetu. Bryła oddziela części nie tylko wizualnie, ale i akustycznie, tłumiąc odgłosy ruchu ulicznego.
Strefa dzienna jest otwarta, przestronna i jasna. Komfortowa dla mieszkańców, ale również sprzyjająca spotkaniom z przyjaciółmi i rodziną. Otwarta kuchnia, duży stół zajmujący centralne miejsce w salonie i wygodna część wypoczynkowa to najważniejsze jej elementy. Część nocna natomiast jest bardziej schowana i prywatna.
Dzięki takiemu podziałowi mieszkanie jest funkcjonalne i łatwo utrzymać w nim porządek. Wszystko ma tu swoje miejsce i jest ukryte za wizualną barierą.
Harmonia i światło
Mieszkanie jest przestronne i bardzo dobrze oświetlone dzięki ogromnym oknom z widokiem na miasto. Wrażenie przestrzenności wzmacniają jasne kolory i prostota aranżacji. Właściciele chcieli mieszkanie o nowoczesnym wnętrzu, urządzone z konsekwencją i umiarem i spójnej stylistyce. Dlatego architektka zdecydowała się na dekoracje sprowadzone do minimum, sprzęty jedynie konieczne i to o ascetycznej formie, a kolory oparte na palecie bieli i szarości, ożywione naturalnym drewnem. We wszystkich pomieszczeniach powtarzają się te same odcienie i materiały.
Podłoga w całym mieszkaniu to panele imitujące klon, a przy wejściu, w kuchni i łazience położono gres. Drewno wprowadza do białego wnętrza naturalne ciepło. Znajdziemy je pod postacią zegarów w drewnianej obudowie, rzeźby przedstawiającą świętą Barbarę, drewnianych ramy obrazów, czy wysięgników lampek w sypialni.
Największą powierzchnię zajmuje salon z kuchnią. Został zaprojektowany tak, by można w nim było przyjmować liczną rodzinę i przyjaciół, a przestronna kuchnia z podwyższoną wyspą stanowi jego integralną część. Szczegółem, który przeważnie chce się ukryć w mieszkaniu, są grzejniki. W katowickim apartamencie nie można było założyć ogrzewania podłogowego, a duża kubatura wykluczała zastosowanie małych kaloryferów. Dlatego architektka zdecydowała się na zastosowanie w salonie grzejników o dużej powierzchni. Zostały dobrane tak, by pasowały do przestronnych okien, a ich kolorystyka do tonacji ściany. Umieszczone wzdłuż okien tworzą subtelny dekor.
Zastosowanie grzejników przyniosło architektce sukces. Mieszkanie, które zaprojektowała dla siebie i męża zostało nagrodzone drugą nagrodą w kategorii projektów zrealizowanych w IX edycji Konkursu VASCO Integracja. Jury doceniło projekt przede wszystkim za jego funkcjonalność, nowoczesny charakter i spójną, konsekwentną stylistykę.
Opracowanie: Dobrawa Bies

